Niva

Caractéristiques de la maison NIVA

Superficie978 pi²
Étage1
Abris d'auto1
Chambres2
StyleNordique

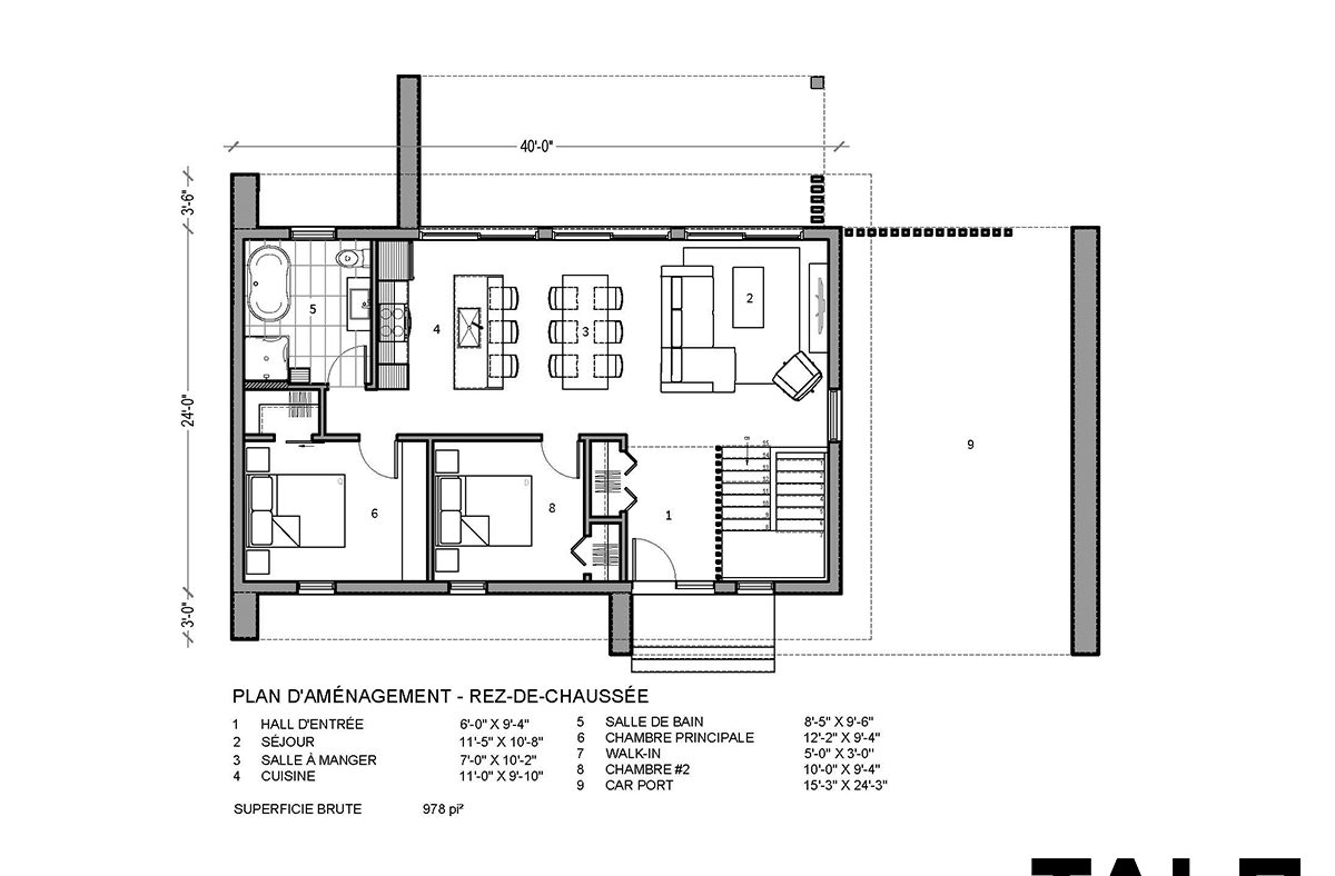
Description de la maison NIVA

La maison NIVA est une résidence de plain-pied d’inspiration nordique dotée d’un plafond cathédrale. Les pièces de vie s’ouvrent sur la fenestration abondante donnant sur la cour. L’entrée, spacieuse et fonctionnelle, est séparée de l’escalier par un élégant lattis de bois qui permet de profiter d’un maximum de lumière naturelle.

Les chambres sont situées sur le même étage, à l’avant de la résidence. La cour arrière demeure ainsi totalement intime. Un abri d’auto, sur le côté de la maison, a également été prévu et vous garde à l’abri des intempéries.

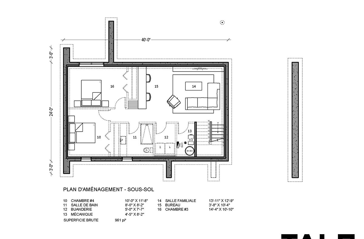
Superficies de la maison NIVA

Rez-de-chaussée : 978 pi²
Sous-sol : 961 pi²
Hauteur bâtiment : 19 pieds 8 pouces

Nos plans

10 plans de maisons neuves sont présentement disponibles