Le modèle NORA, c’est une petite maison nordique qui a du caractère! Elle s’inspire de l’architecture moderne et présente un résultat qui a de la personnalité. Son aménagement compact et fonctionnel fait de ce modèle une option économique et pratique pour loger une famille.
Son look hybride permet d’intégrer un intérieur d’inspiration scandinave et un design très moderne, selon les préférences, tout en restant en cohésion avec son style architectural.
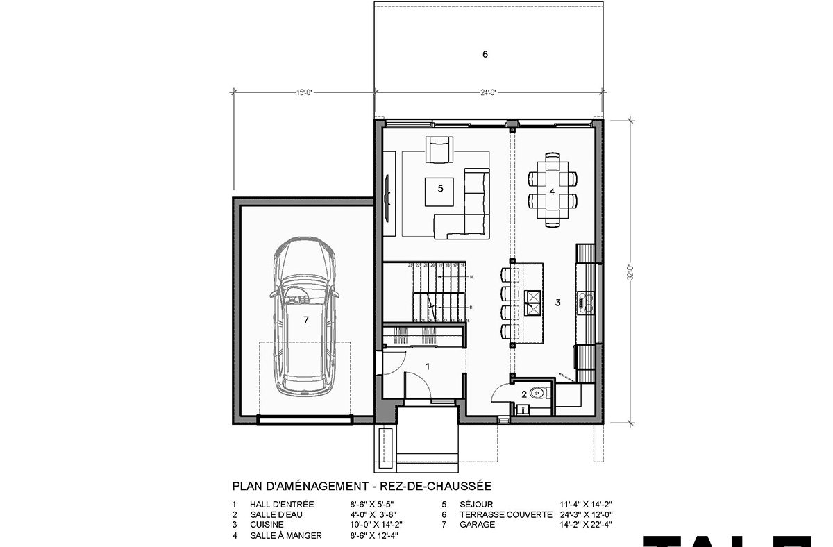
Rez-de-chaussée : 770 pi²
Étage : 786 pi²
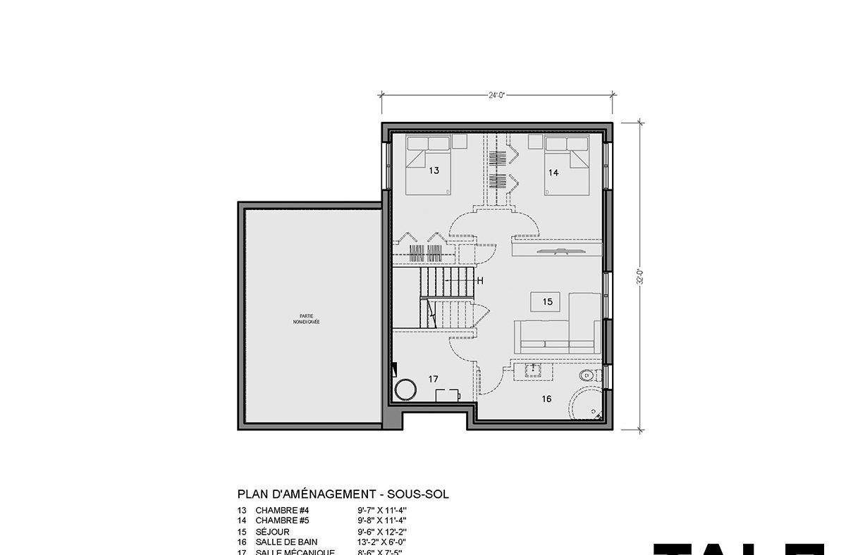
Sous-sol : 770 pi²
Garage : 360 pi²
Hauteur bâtiment : 37 pieds 7 pouces