La maison UNGAVA est une résidence de villégiature conçue pour s’intégrer dans un environnement naturel, sur un terrain boisé ou sur la rive d’un lac. Le mur arrière entièrement vitré permet aux occupants de profiter pleinement de la vue.
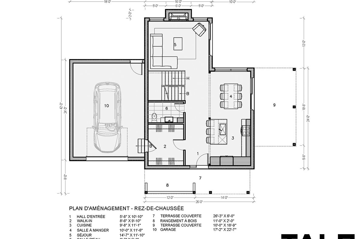
Au rez-de-chaussée, l’aménagement simple et fonctionnel sépare le séjour de la salle à manger et de la cuisine. Un grand vestibule et une salle d’eau se situent entre le garage et les espaces de vie de l’habitation.
À l’étage, la maison UNGAVA présente 3 chambres, dont une spectaculaire chambre-maître qui offre la même vue qu’au rez-de-chaussée. On y trouve aussi une salle de bain complète, avec un bain et une douche séparés, et une grande luminosité.
Rez-de-chaussée : 844 pi²
Étage : 844 pi²
Sous-sol : 828 pi²
Garage : 436 pi²